Ersatzneubau Moabiter Kinderhof

Moabiter Kinderhof Ersatzneubau 2020, Außenperspektive

Pädagogisch betreute Spielplätze erfüllen als niedrigschwellige, offene Einrichtungen eine wichtige Funktion in der überwiegend außerschulischen Betreuung von Kindern. Der „Moabiter Kinderhof“, Seydlitzstraße 12, 10557 Berlin-Mitte, Ortsteil Moabit, der seit 1997, mit Unterstützung der bezirklichen Jugendhilfe, von der Stadtteilgruppe Moabit e.V. betrieben wird, sind montags bis freitags von 13:30 – 18:00 Uhr Kinder im Alter zwischen 7 und 13 Jahren willkommen. Angeboten werden ein breites Spektrum an ganzheitlich und ökologisch orientierten Lernprojekten, Spiel- und Sportaktivitäten sowie die Mitwirkung an der täglichen Pflege von Kaninchen. Die Angebote können auf Anmeldung auch von Schulklassen und anderen Kindergruppen wahrgenommen werden.

Bestandsgebäude

Innerhalb des Grundstückes befindet sich neben entsprechend geeigneten Freiflächen und Ausstattungen auch ein kleineres Gebäude, das ehemals für bezirkliche Parkpflegezwecke genutzt wurde, nur eingeschränkt den unterschiedlichen Raumfunktionen für die Betreuer_innen und Kinder entspricht und in seiner baulichen Substanz, Größe und technischen Ausstattung nicht mehr erhaltenswürdig ist.

Moabiter Kinderhof Ersatzneubau 2020, Innenperspektive

Ersatzneubau

Folglich soll dieses Gebäude durch ein neues, geeignetes, zeitgemäßes und nachhaltiges Spielhaus mit einer Bruttogrundfläche von ca. 300 m² ersetzt werden. Das Vorhaben soll aus dem Förderprogramm „Soziale Stadt – Baufonds“ finanziert werden. Innerhalb des konkurrierenden, diskursiven Gutachterverfahrens wurde Mitte Juni der favorisierte Entwurf von Kersten Kopp Architekten für die Objektplanung des Gebäudes und der Innenräume gefunden. Im Dezember dieses Jahres wird die Einreichung der Vorplanunsgunterlage erwartet. Als Baubeginn wird das 3. Quartal 2022 avisiert.

Moabiter Kinderhof Ersatzneubau 2020, Lageplan

Der Entwurf von Kersten Kopp Architekten

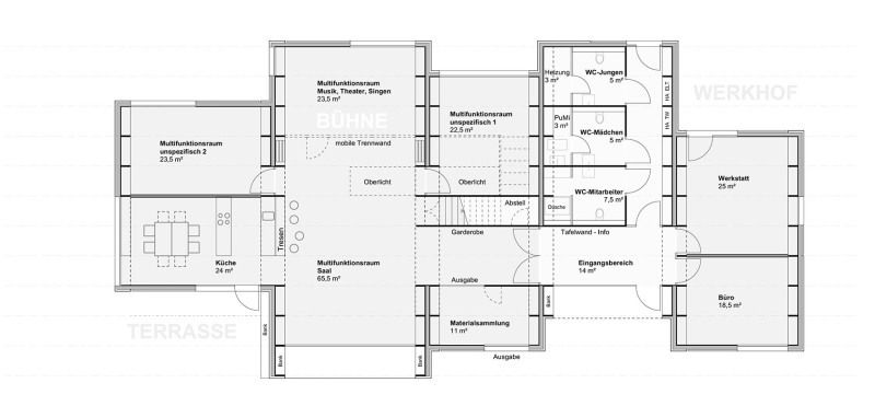
Das neue Gebäude wird im östlichen Grundstücksteil so angeordnet und ausgeformt, dass der alte Baumbestand erhalten bleiben kann. Durch Versprünge und Verschlankungen passt sich der Baukörper zwischen die Kastanien-, Buchen- und Eichenbäume ein.

Vom Haupt-Grundstückzugang im Osten erreicht man auf kurzem Wege den einladenden Eingangsbereich des Neubaus. An diesen gliedern sich die verschiedenen Nutzbereiche direkt an.

Man kann den sich in Richtung Garten erstreckenden Hauptraum der Einrichtung – den Multifunktionsraum Saal – betreten. Man durchquert zunächst einen Raumbereich mit Garderobe und Materialausgabe, bevor sich der große Raum erweitert. In Richtung Süden öffnet er sich großzügig zur überdachten Loggia.

Betritt man den Saal, blickt man auf den dem Zugang gegenüberliegenden Tresen, der bereits Teil der offenen Küche ist. Die Küche bildet die westliche große Nische des Saales und erweitert ihn so zum Garten. Von der Küche aus kann direkt die großzügige Terrasse im Südwesten betreten und auf kurzem Wege Hochbeete und Lehmofen erreicht werden.

Um diesen „wohnzimmerartigen“ Raum gruppieren sich weitere zentrale Räume des Neubaus. Im Norden ist das der Multifunktionsraum für Musik, Theater usw. Dieser ist durch eine mobile Trennwand vom Saal getrennt. Für eine größere Veranstaltung können die beiden Räume zu einem größeren Saal zusammengeschlossen werden – der Musikraum kann zum Bühnenraum werden.

Östlich und westlich des Multifunktionsraumes mit akustischen Anforderungen befinden sich zwei weitere Multifunktionsräume, die ebenfalls vom Saal aus betreten werden – wahlweise als Mädchen- und Jungenraum oder auch als Kreativ- oder Chillraum nutzbar. Die bauliche Ausbildung der Räume lässt den Spielraum für die Variabilität der Nutzung.

In den multifunktional nutzbaren Mehrzweckräumen sowie an den Übergängen zu den anderen Räumen werden unterschiedliche Aktions- und Rückzugsräume ausgebildet, die den unterschiedlichen Bedürfnissen der Kinder und Jugendlichen eine räumliche Entsprechung geben. Einen besonderen Rückzugsort stellt die Hochebene dar.

Moabiter Kinderhof Ersatzneubau 2020, Grundriss

Konstruktion und Material

Der Neubau des Moabiter Kinderhofes wird im Sinne eines nachhaltigen und CO2-neutralen Ansatzes in Holzbauweise geplant. Die konstruktiven Bauteile werden aus Furnierschichtholzplatten gefertigt. Das Tragwerk wird aus Modulen zusammengesetzt, die im Werk gefertigt und auf der Baustelle lediglich zusammengefügt werden.

Die Dachplatten aus Furnierschichtholz-Rippenelementen lagern auf Wandelementen ähnlicher Konstruktionsart auf. Die 40cm tief ausgeführten Stiele der Wandelemente erlauben die Nutzung der Tragkonstruktion als Stauraum. Zum Teil werden mit Baufertigstellung Regale, Sitzelemente und Schranktüren integriert. Die Struktur lässt aber auch in der Nutzungsphase das einfache Nachrüsten von Ausbauelementen zu.

Moabiter Kinderhof Ersatzneubau 2020, Längsschnitt