Wilhelm-Bölsche-Schule (Integrierte Sekundarschule) - 09K05

09K05 Wilhelm-Bölsche-Schule, Treptow-Köpenick
Aßmannstraße 11, 12587 Berlin

Anforderungen
Die Wilhelm-Bölsche-Schule wird bis 2026 von 3 auf 5 Züge erweitert werden.

• Errichtung einer Containeranlage als Ausweichquartier (BT.1)
• Abriss Haus B, schadstoffbelasteter 90er-Jahrebau, genannt MUR (Modulare Unterrichtsräume)
• Erweiterungsneubau mit einem überdachten Verbindungsgang an den Bestand der Sekundarschule (BT.2)
• Ertüchtigung und Neugestaltung der Außenanlagen

Vollständige Barrierefreiheit des Neubaus nach dem Prinzip „Design for all“
• Einbau eines Aufzuges im Erweiterungsneubau
• Barrierefreie Sanitäranlagen und Pflegeräume
• barrierefreie Außenanlagen

Finanzierung: Investitionsmittel des Landes Berlin

Gesamtkosten : 16.520.000 €
davon für BT. 1: Schulcontainer: 3.895.000 €
davon für BT. 2: Erweiterungsneubau, inkl. Außenanlagen: 12.625.000 €

Ansprechpartner / Planer:

Bedarfsträger:
BA Treptow-Köpenick von Berlin, Schul- und Sportamt / FB Schule
Tel.: 030 90297 3295

Bauherr/ Projektleitung / -Steuerung:
BA Treptow-Köpenick von Berlin, SE Facility Management/ FB Hochbau
Tel.: 030 90297 7000

Objektplanung:
wiechers beck Gesellschaft von Architekten mbH
Tel.: 030 61622 99-0

Nachfolgendes Bildmaterial aus Präsentationen des Objektplaners: – wiechers beck Gesellschaft von Architekten mbH 

Überblick über die Baumaßnahme

Verteilung der Baumassen nach Fertigstellung:

• Denkmalgeschütztes Bestandsgebäude (Haus A) und Erweiterungsneubau (Haus B) mit Schulhof im Norden
• Temporäre Containeranlage (Haus D), Sporthalle (Haus C) und Sportplatz im Süden

Wilhelm Bölsche Schule Lageplan Campus

Darstellung: Lageplan Campus

Zugänge zu den Gebäuden:

• Neuer zentraler Haupteingang des Erweiterungsneubaues (Haus B) am Verbindungsgang zwischen Neubau und Bestand, erreichbar über die Ahornallee
• Überdachter Verbindungsgang zwischen Bestand (Haus A) und Erweiterungsneubau (Haus B)
• Fahrradabstellflächen werden auf dem Schulhof und vor der Sporthalle verortet
• Feuerwehrzufahrt von der Ahornallee

Kapazität der Schule:

• Die gesetzliche Grundlage ist das gültige Musterraumprogramm, darin sind die zu schaffenden Nutzflächen für eine 5 zügige Schule und die Funktionseinheiten festgelegt

• Mit Fertigstellung der Baumaßnahmen wird eine Gesamtkapazität von 560 Schulplätzen geschaffen, die geforderten Funktionseinheiten u.a. für Teilungs- und Förderunterricht sowie Fachräume, Therapieräume und eine bedarfsgerechte Errichtung von einem naturwissenschaftlichen Cluster für die Fächer Biologie, Chemie und Physik

• die derzeitige Nutzfläche der MUR beträgt insgesamt ? m²
• die Nutzfläche nach Fertigstellung wird insgesamt 2.330 m² betragen

• die neu geschaffene Kapazitätserweiterung ist, angesichts der Wohnungsneubauprojekte in der Umgebung, bei Fertigstellung der Baumaßnahmen ausreichend, so dass die derzeit dringend benötigte Zusatzfläche der temporären Containeranlage nach Beendigung sämtlicher Bauabschnitte zurück gebaut werden können

Kapazität der Schule:

• Die gesetzliche Grundlage ist das gültige Musterraumprogramm, darin sind die zu schaffenden Nutzflächen für eine 5 zügige Schule und die Funktionseinheiten festgelegt

• Mit Fertigstellung der Baumaßnahmen wird eine Gesamtkapazität von 560 Schulplätzen geschaffen, die geforderten Funktionseinheiten u.a. für Teilungs- und Förderunterricht sowie Fachräume, Therapieräume und eine bedarfsgerechte Errichtung von einem naturwissenschaftlichen Cluster für die Fächer Biologie, Chemie und Physik

• die derzeitige Nutzfläche der MUR beträgt insgesamt ? m²
• die Nutzfläche nach Fertigstellung wird insgesamt 2.330 m² betragen

• die neu geschaffene Kapazitätserweiterung ist, angesichts der Wohnungsneubauprojekte in der Umgebung, bei Fertigstellung der Baumaßnahmen ausreichend, so dass die derzeit dringend benötigte Zusatzfläche der temporären Containeranlage nach Beendigung sämtlicher Bauabschnitte zurück gebaut werden können

Wilhelm-Bölsche-Schule Perspektive Erweiterungsneubau aus Richtung neuer Schulgarten

Darstellung: Perspektive Erweiterungsneubau aus Richtung neuer Schulgarten

Berücksichtigung nachbarschaftlicher Belange bei der Planung und Situation nach Fertigstellung

• Der Campus der Wilhelm-Bölsche-Schule ist denkmalgeschützt und wird nach den Vorgaben und Auflagen der Unteren Denkmalschutzbehörde und des Landesdenkmalamtes erweitert.

• Der Denkmalcharakter der benachbarten Wohnbebauung wird durch den Erweiterungsbau nicht beeinträchtigt

• Die Erschließung des Ergänzungsneubaues orientiert sich nach Süden, in Richtung Schulhof.

• Auf dem Dach des Erweiterungsneubaus wird aus denkmalschutzrechtlichen Gründen keine PV-Anlagen oder Lüftungsanlagen errichtet. Somit erfolgt keine Beeinträchtigung der Nachbarschaft in diesem Zusammenhang.

• Vor dem Beginn der Bauarbeiten wurde ein Beweissicherungsverfahren der umliegenden Wohnhäuser, Fassaden und Zäune durchgeführt. Der Umfang und Detaillierungsgrad wurde durch einen zuständigen Gutachter festgelegt und dokumentiert.

Zeitlicher Ablauf der einzelnen Baumaßnahmen

BT 1 Container:
Beginn 07/2022
- Errichtung der temporären Containeranlage in der Aßmannstraße 10 gegenüber der Sporthalle

Fertigstellung ist am 12/2022 erfolgt

BT 2 – Ergänzungsbau:
Beginn 03/2023
- Große Teile der Baustelleneinrichtung und Baufeldvorbereitung sind bereits ausgeführt
- Abriss Haus B (MUR) bis zum 05/2023
- Beginn der Rohbauarbeiten für den Erweiterungsneubau ist für den 06/2023 avisiert

Die Fertigstellung geplant 12/2025

Freiflächen:
Beginn 10/2025
- Herstellen der Freianlagen in Teilabschnitten mit Regenrückhaltemulden und Zugängen zum neuen Ergänzungsneubau
- Herstellen der Freianlagen im östlichen Schulhofbereich zur Peter-Hille-Straße inkl. Schulgarten als „Grünes Klassenzimmer“

Geplante Fertigstellung der Gesamtmaßnahme: 06/2026

Überblick der Bauphasen und Baustellenabwicklung von 2023 bis 2026

Baustellenzufahrten erfolgen über:
• Baustellenzufahrt 1 über die Ahornallee
• Baustellenzufahrt 2 die Peter-Hille-Straße

Baustelleneinrichtung:
• Erfolgt ausschließlich auf dem Schulgelände inkl. erforderlicher Kranaufstellflächen
• Sicherung des Schulgrundstücks über Bauzaunanlagen

Wilhelm Bölsche Schule Baustellenlogistik

Darstellung: Baustellenlogistik

Wilhelm Bölsche Schule Temporäre Containeranlage Außenansicht

Darstellung: Außenansicht der Containeranlage Firma FAGSI GmbH

Planung der einzelnen Bauteile und Bauabschnitte

BT1 – Temporäre Containeranlage:

• Der temporäre Schulergänzungsbau wurde als
dreigeschossige Containeranlage mit insgesamt
18 Unterrichtsräumen 4 Lehrerräume und zusätzlichen Nebenräumen
sowie Sanitäranlagen am 12/2022 baulich fertiggestellt

• Die Anlage fungiert als derzeit dringend benötigte
Zusatzfläche sowie als Ausweichfläche während der Abrissphase des aktuellen Hauses B (MUR) und während der Bauphase des Erweiterungsneubaus

• Die vor Ort ausgebaute Containeranlage unterscheidet sich im Innenbereich durch den sehr hohen Qualitätsstandard, kaum von einem konventionell errichteten Schulneubau

Wilhelm Bölsche Schule Temporäre Containeranlage Innenansicht

Darstellung: Innenansicht der temporären Containeranlage

BT2 – Erweiterungsneubau

Der Neubau wird als dreigeschossiger Baukörper ohne Unterkellerung ausgebildet, um die von den Denkmalschutzbehörden geforderten Höhenbezüge zum denkmalgeschützten Hauptgebäude einzuhalten.
In Teilbereichen wird ein Dachgeschoss für Technikflächen (Lüftungszentrale) vorgesehen.

Wilhelm Bölsche Schule Schnitte, Bezugshöhen und Abstandsflächen

Darstellung: Schnitte Bezugshöhen und Abstandsflächen

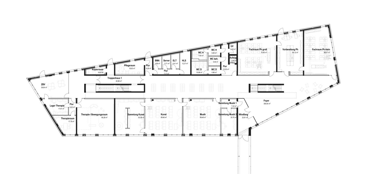
Erdgeschoss:

• Der Eingang in den Neubau erfolgt durch den südlichen Windfang und geht über in das Foyer
• Im EG werden neben Musik- und Kunsträumen, ein Lehrerstützpunkt, Therapie -und Bewegungsräume, sowie Technikräume ausgebildet.
• Im EG besteht das naturwissenschaftliche Lerncluster aus drei Physikräumen
• Die barrierefreie Erschließung der oberen Etagen ist über die Aufzugsanlage sichergestellt

Wilhelm Bölsche Schule Schuldarstellung Erdgeschoss

Darstellung: EG - Erweiterungsneubau

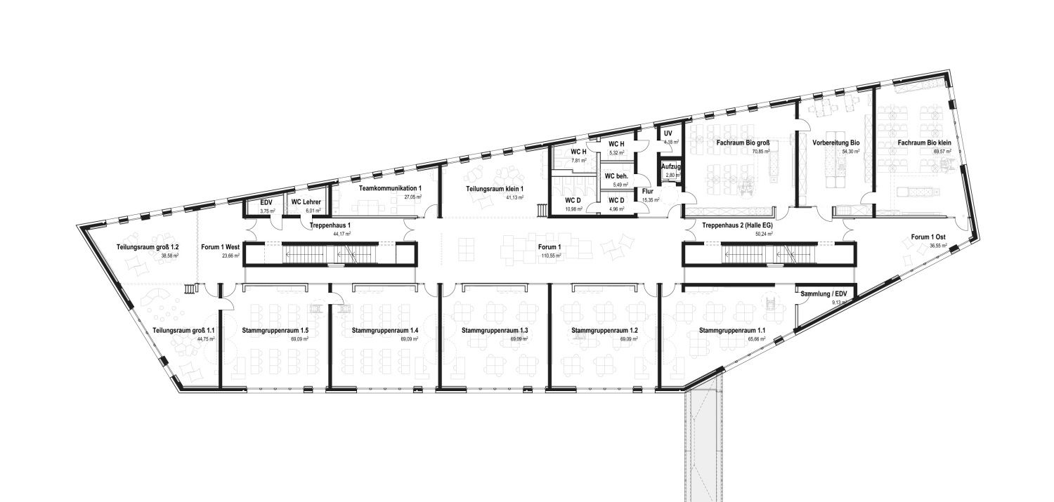
1. Obergeschoss:

• Das 1.OG ist vor allem durch die fünf großzügigen Stammgruppenräume und die dazugehörigen Teilungsräume gekennzeichnet.
• Zusätzlich werden hier die drei Fachräume für Biologie verortet.

Wilhelm-Bölsche-Schule Schulgrundriss 1. Obergeschoss

Darstellung: 1.OG Erweiterungsneubau

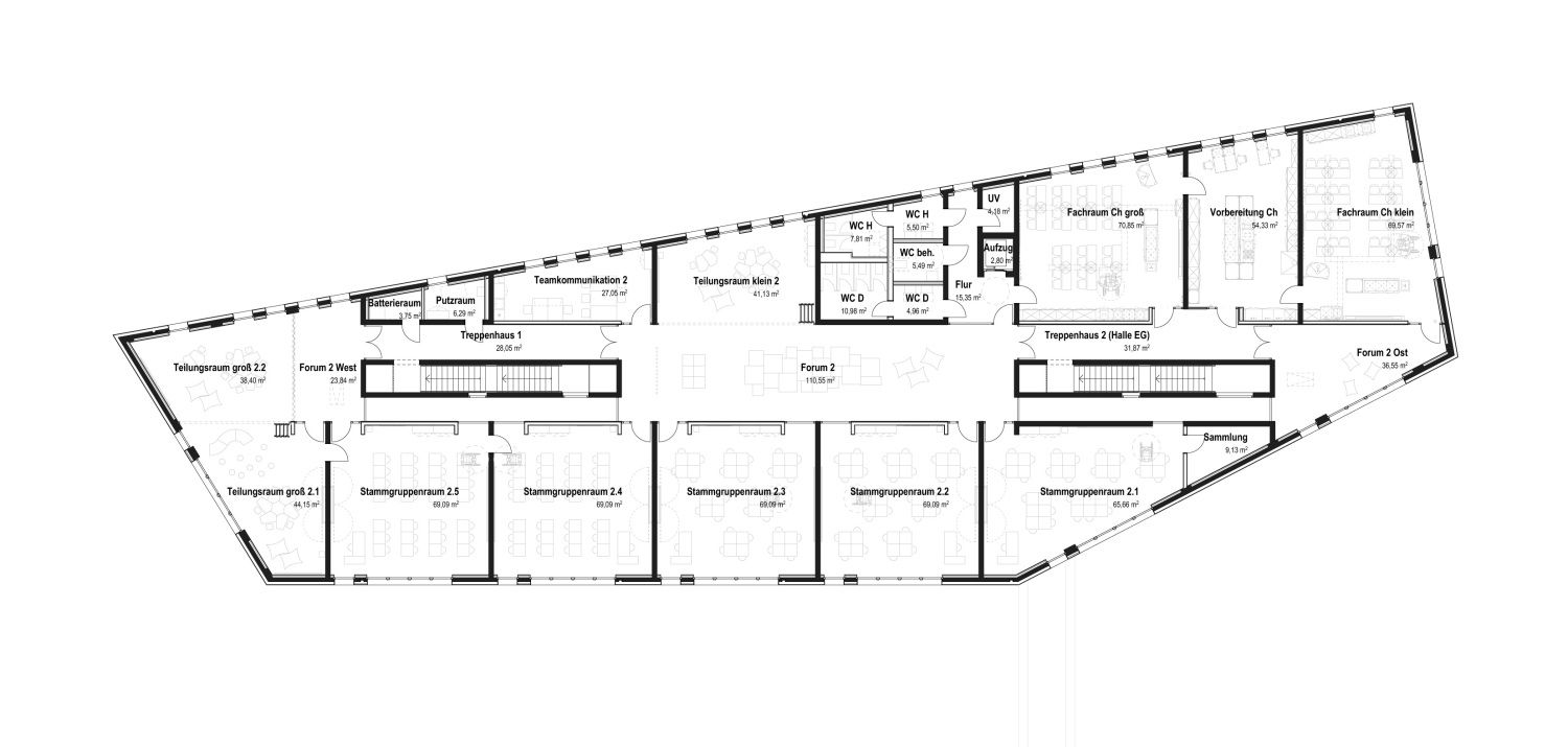
2. Obergeschoss:

• Im 2. Obergeschoss werden analog dem 1.OG fünf Stammgruppenräume und die dazugehörigen Teilungsräume verortet
• Weiterhin werden im östlichen Teil des Neubaus die Fachräume für den Chemieunterricht ausgebildet

Wilhelm-Bölsche-Schule Schulgrundriss 2. Obergeschoss

Darstellung: 2.OG Erweiterungsneubau

Ansichten der Fassaden nach Fertigstellung:

• Der Erweiterungsbau wird im Kontext mit dem Hauptgebäude als „weiterer Gebäudeflügel“ auf dem Schulcampus konzipiert. Der Neubau tritt in einen Dialog mit dem Hauptgebäude ein, es werden z.B. prägende Elemente, wie das Satteldach übernommen, jedoch neu interpretiert, um einen Kontrast und Spiel zwischen alt und neu zu schaffen.

• Die Fenster des Neubaus werden analog dem Hauptgebäude als hochformatige Elemente ausgebildet, die sich allerdings weniger stringent über die Fassade verteilen. Im Erdgeschoss wird zu den Pausenhofflächen hin ein Fensterband ausgebildet, welches den Höhenbezug des Sockelgeschosses des Hauptgebäudes aufnimmt.

• Die Ausbildung der Materialität der Hülle des Erweiterungsbaus ist aus einem einzigen Material angedacht, um die Abstraktion des Neubaus und dessen Kontrast zum Bestand zu erhöhen. Dieser Ansatz wurde im Prozess der Planung und Genehmigungsfähigkeit des Erweiterungsneubaues seitens des Landesdenkmalamtes explizit begrüßt.
Abgestimmt ist eine hinterlüftete Metallbekleidung über Dach und Fassade und ein dunkler kupferfarbener Farbton.

• Die Fensterelemente werden als Aluminiumfenster ausgebildet. Um einen Luftaustausch auch während einer Unterrichtseinheit zu ermöglichen, ohne dass der Nutzer den Unterricht unterbrechen muss, um eine Stoßlüftung vorzunehmen, wird in jedem Unterrichtsraum ein Fensterelement mit motorisch betriebenen Lüftungsflügeln (z.B. Lamellenfenster) vorgesehen, welches bei CO2-Überschreitung im Raum automatisch geöffnet wird. Es wird weiterhin die An- /Abschaltung der automatisierten Lüftung mittels Schlüsselschalter durch die Lehrkraft ermöglicht. Mittels den automatisierten Lüftungsflügel soll ebenfalls eine Nachtauskühlung ermöglicht werden.

Wilhelm-Bölsche-Schule Schulblick vom Schulhof auf den Erweiterungsneubau

Darstellung: Blick vom Schulhof auf den Erweiterungsneubau

Wilhelm Bölsche Schule Schulvisualisierung Südansicht des Erweiterungsneubaus

Darstellung: Visualisierung Südansicht des Erweiterungsneubaus

Freianlagenplanung:

• Im nördlichen Teil des Grundstücks werden die Wege- und Vegetationsbereiche um den Neubau angepasst.

• In das schmale, nördlich des Neubaus gelegene Band werden Grünstrukturen (Rasenflächen und Strauch- und Bodendeckerflächen)
aufgenommen. Aus Gründen der geringen Übersichtlichkeit für die Schulaufsicht wird diese Fläche auf Wunsch der Schulleitung eingefriedet
und steht für den regulären Pausenbetrieb ggf. nur nach Absprache zur Verfügung.

• Der westliche und ein Teil des nördlichen Bereiches am Neubau dienen der Erschließung (Fluchtwege) und der Stellung eines
Radstellplatzes.

• Der im vorderen, westlich gelegenen Teil des denkmalgeschützten Bestandsschulgebäudes liegende Schulhof ist von dicht stehenden alten
Lindenbäumen geprägt. Die Ausstattung dieser Schulhoffreiflächen mit Spiel-, Bewegungsgeräten sowie Austattungsmobiliar und Platzstrukturen für die
Schüler*innen ist aufgrund der Lindenbäume kaum bzw. in nicht ausreichender Menge und Qualität vorhanden und kann hier auch aus Gründen des Denkmalschutzes (Ensemble) nicht ausgebaut und qualifiziert werden.

• Deswegen, erstreckt sich östlich des offen gehaltenen Verbindungsganges (zw. Alt- und Neubau) der neu zu qualifizierende Schulhof.
Diese Grundstücksfläche wurde bislang nicht für Schulhofzwecke genutzt und soll nun qualifiziert und ausgebaut werden.
Hier werden zukünftig Flächen für Spiel-, Bewegungsgeräte sowie Austattungsmobiliar, Schulgartenflächen als „Grünes Klassenzimmer“ und technische Ausstattungen (Versickerungsanlagen) verortet.

Wilhelm-Bölsche-Schule Freianlagenplanung auf dem Schulgelänge

Darstellung: Freianlagenplanung auf dem Schulgelände

Projektstand: 04/2023

Planung:
• Anmeldung I-Planung zur BSO 2018-2022
• Datum des geprüften Bedarfsprogramms 07/2018
• Beauftragung Planungsteam seit Dez. 2018 (Objektplaner, Technische Gebäudeausrüstung, Freianlagenplaner, Gutachter)
• Erweiterte Vorplanung: Einreichung 04/2021 an Prüfinstanz Senat / Freigabe 09/2021 durch Prüfinstanz Senat
• Bauantrag: Einreichung 05/2021 – Baugenehmigung: 11/2021

Bautenstand:
• temporären Containeranlage fertiggestellt 12/2022
• Baufeldvorbereitung, u.a. Erdarbeiten fertiggestellt 03/2023
• Aufbau Bauzaun fertiggestellt03/2023
• Abriss Haus B (MUR) ab 03/2023 bis 05/2023
• Beginn Rohbau ab 06/2023

Bisherigen Probleme und mögliche Verzögerungen:

• lange Prüfzeiten der Planungs- und Bauantragsunterlagen
• Kündigung des Planers für die technische Gebäudeausrüstung und erneutes VgV- Verfahren im August 2022
• Aktuelle und bevorstehende Kostensteigerungen und dadurch erforderliche Nachfinanzierung aufgrund von:
a) Baupreisentwicklung 2019-2022 infolge der Corona-Pandemie
b) Baupreisentwicklung ab März 2022 infolge des Ukraine-Krieges
c) gegenwärtig hohe Inflationsrate
d) Kapazitätsengpässe bei ausführenden Firmen

Bezirksamt Treptow-Köpenick von Berlin

Postanschrift
PF: 91 02 40
12414 Berlin