Los 1

1. Preis: 35.900 €

Hild und K GmbH, München
Verfasser:innen: Matthias Haber
Mitarbeiter:innen: Theresa Klingler, Jonathan Bürgel

Happel Cornelisse Verhoeven Architecten BV, Rotterdam
Verfasser:innen: Floris Cornelisse
Mitarbeiter:innen: Ahydee Gonzalez

Modersohn & Freiesleben, Berlin
Verfasser:innen: Antje Freiesleben
Mitarbeiter:innen: Sophia Grabow

Brandschutz: GSE Ingenieur-Gesellschaft mbH Saar Enseleit und Partner, Berlin
Schallschutz: Müller BBM, Berlin
Tragwerk: Niehues Winkler Ingenieure GmbH, Berlin

  • Beurteilung durch die Jury

    Dem Entwurf gelingt es in sehr schlüssiger Weise, durch die Gestaltung des Gebäudes B1.2 eine städtebauliche Leitidee zu formulieren. Die Gliederung der Baukörper ist eindeutig und erkennbar. Die Nutzungen lassen sich differenziert zuordnen.

    Die horizontale Gliederung der Fassade des Langhauses (Gebäude B1.1) an der Grunerstraße ermöglicht die Adressbildung sowohl für die Gewerbeeinheiten im Erdgeschoss und die Büronutzung als auch für die darüberliegenden Wohnungen. Die Ausbildung des Laubengangs in den beiden Wohngeschossen ist elegant in die Fassadenkomposition integriert, erscheint aber noch zu offen. Die spätere Nutzung des Laubenganges auch als Abstellfläche, zum Beispiel für Fahrräder, ist zu erwarten und wird kritisch bewertet.

    Das Eckhaus (Gebäude B1.2) ist mit den Proportionen der Arkade, der zurückhaltenden Gestaltung der Bürofassaden und dem Walmdach mit der überraschenden Betonung durch die Laterne in der Lage, die besondere städtebauliche Situation zu thematisieren und eine angemessene Identifikation der Nutzenden zu ermöglichen.

    Das Wohnhaus (Gebäude B1.3) in der Jüdenstraße fügt sich in ruhiger Zurückhaltung in das Ensemble ein.

    Für die unterschiedlichen Nutzungsformen werden jeweils gute bis sehr gute Grundrisslösungen angeboten, die eine wirtschaftliche Weiterentwicklung ermöglichen. Die Überlagerung der Wohneinheiten im Gebäude B1.1 über der Büronutzung ist geschickt gelöst. Die innere Zone der Bäder mit der intensiven TGA-Erschließung liegt passenderweise über der Dunkelzone der Büro-ebenen.

    Die vorgeschlagene, gemischte Konstruktion bündelt die Stärken des jeweiligen Materials mit den Anforderungen der Nutzung. Die Stahlbetonskelettkonstruktion ist im Gebäude B1.1 auf die dar-über liegende Holzkonstruktion abgestimmt, auch wenn nicht eindeutig nachzuvollziehen ist, ob die tragenden Massivholzschotten die Anforderungen des Schallschutzes erfüllen. Nur jede zweite tragende Wohnungstrennwand liegt über einer tragenden Stahlbetonstützen-Achse. Die Konstruktionen in Haus B1.2 und B1.3 sind klar strukturiert.

    Die von den Verfassenden angegebenen Baukosten liegen über dem gesetzten Ziel. Die starke Tiefengliederung der Fassaden wirkt sich auf die Wirtschaftlichkeit negativ aus, könnte jedoch dank der Optionen zur Vorfertigung ökonomischer umgesetzt werden. Die Geothermie und die Brauchwassernutzung belasten ebenfalls die Baukosten.

    Es ist zu erwarten, dass sich der Entwurf charaktervoll, aber unaufgeregt in das Gesamtquartier positioniert und damit die Erwartungen an die städtebauliche und architektonische Qualität voll erfüllt.

    Denkmalschutz
    Die Einbindung des archäologischen Befundes im Untergeschoss scheint grundsätzlich gelungen, jedoch braucht es eine kritische Überprüfung der Lage der Aufzugskerne von Haus B1.1 im Untergeschoss (Unterfahrten) sowie eine Reduzierung der Technikflächen, da diese unnötig weit in den archäologischen Befund eingreifen. Die Sichtbarkeit im Erdgeschoss von der Grunerstraße ist eingeschränkt, hier könnte es einer klareren Adressierung geben.

  • Los 1 1. Preis Lageplan

    Lageplan

  • Los 1 1. Preis Modell

    Modell

  • Los 1 1. Preis GR UG

    Grundriss UG

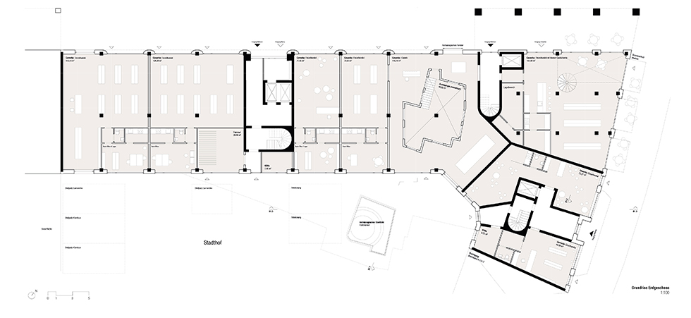
  • Los 1 1. Preis GR EG

    Grundriss EG

  • Los 1 1. Preis GR RG

    Grundriss Regelgeschoss

  • Los 1 1. Preis Ansicht 1

    Ansicht der Grunerstraße

  • Los 1 1. Preis Ansicht 2

    Ansicht der Jüdenstraße

3. Preis: 18.000 €

Jordi Keller Pellnitz, Berlin
Verfasser:innen: Marc Jordi, Susanne Keller, Alexander Pellnitz
Mitarbeiter:innen: Frederic Jordi, Yannick Langer

Prof. Hans Kollhoff Generalplanungs GmbH, Berlin
Verfasser:innen: Hans Kollhoff
Mitarbeiter:innen: Alexander Pols, Jens Winterhoff

Uwe Schröder Architekt, Bonn
Verfasser:innen: Uwe Schröder
Mitarbeiter:innen: Timo Steinmann, Matthias Storch, Johannes Büge

  • Beurteilung durch die Jury

    Die Verfassenden schlagen für die drei Häuser eine sehr einfache, aus der Berliner Tradition entwickelte Sprache vor. Die wichtigen Bauteile – eine natursteinbekleidete Sockelzone, der Hauptteil verputzt mit stehenden Fensterformaten und durchweg geneigte Ziegeldächer (‚Berliner Dächer‘), werden durch differenziert profilierte Gesimse voneinander abgesetzt. Daneben erhält jedes der drei Häuser ein eigenes, aus seinem jeweiligen Standort abgeleitetes Thema: das Haus in der Jüdenstraße mit dem niedrigen, von zwei Säulen flankierten Eingangsportal, das Eckhaus mit Arkade und dem ungewöhnlichen, asymmetrischen Portal an der Jüdenstraße, das lange Haus an der Grunerstraße mit einer Fassadeninkrustation, die an die beiden Vorgängerbauten erinnert.

    Diese so klare wie selbstverständliche Strategie wird – nicht zuletzt wegen ihrer Allgemeingültigkeit – als der Aufgabe angemessen gewürdigt. Dennoch werden einzelne Lösungen kritisiert: die asymmetrische Fassade des Eckhauses zur Jüdenstraße bewältigt das (selbst gestellte) Thema aus dem Zusammentreffen von Arkade, Eingang und der mit Serliana betonten Symmetrie letztlich nicht überzeugend und auch das Relief an der Grunerstraße wird kontrovers diskutiert. Ob die hier vorgestellte Architektur ein zeitgemäßer Beitrag zu einem innerstädtischen Neubau ist, bleibt in der Jurydebatte offen. Dies auch, weil das klare, kraftvolle Bild nicht immer glücklich zu den ge-planten Nutzungen findet.

    Die Zugänge zu den Gewerbeeinheiten über die Portalnischen werden als nicht praktikabel eingeschätzt, die Lochfassade mit einem Fensterabstand von über 2m ist für eine Büronutzung problematisch. Die ausschließlich über einen Laubengang im Süden erschlossenen Kleinwohnungen in Haus B1.1 (mit Schlafräumen zur lauten Straße) werden kritisch gesehen und auch der für das 5. OG dargestellte Saal stellt keine überzeugende Lösung für die große Raumtiefe der Büroflächen des Eckhauses B1.2 dar.

    Die vorgeschlagene, weitgehend monolithische Bauweise mit überwiegend verputzten Fassaden ist dem architektonischen Ausdruck angemessen und prinzipiell wirtschaftlich. Hinsichtlich der Kennzahlen liegt der Vorschlag im mittleren Bereich der eingereichten Arbeiten, damit allerdings auch oberhalb des angestrebten Budgets. Dazu tragen v.a. einzelne aufwändigere Bauteile (Rippendecken, Holz-Alu-Fenster, Gauben) bei.

    Insgesamt ein kultivierter Beitrag, der seine nach Allgemeingültigkeit strebende Kraft aus einer präzisen Analyse des Berliner Kontextes bezieht, der aber – nicht zuletzt auf Grund dieser so direkten Bezugnahme – auch manchen schwierigen Widerspruch in Kauf nimmt.

    Denkmalschutz
    Die Einbindung des archäologischen Fundes im Untergeschoss profitiert einerseits von der Lage des Aufzugs, der nicht im sensiblen archäologischen Bereich liegt. Andererseits wird dieser Vorteil durch die Führung des Treppenkerns bis in das Untergeschoss wieder aufgehoben. Im Erdgeschoss sind die Sichtbarkeit und die Zugänglichkeit eingeschränkt, hier bedarf es einer klareren Adressierung.

  • Los 1 3. Preis Jordi Keller Pellnitz Lageplan

    Lageplan

  • Los 1 3. Preis Jordi Keller Pellnitz Modell

    Modell

  • Los 1 3. Preis Jordi Keller Pellnitz GR UG

    Grundriss UG

  • Los 1 3. Preis Jordi Keller Pellnitz GR EG

    Grundriss EG

  • Los 1 3. Preis Jordi Keller Pellnitz GR RG

    Grundriss Regelgeschoss

  • Los 1 3. Preis Jordi Keller Pellnitz Ansicht 1

    Ansicht der Grunerstraße

  • Los 1 3. Preis Jordi Keller Pellnitz Ansicht 2

    Ansicht der Jüdenstraße

3. Preis: 18.000 €

von Ey Henkel Architektur GmbH, Berlin
Verfasser:innen: Ulrich von Ey, Moritz Henkel, Judith von Ey
Mitarbeiter:innen: A. Natterer, S. Liakhovetckaia, H. Behnke, O.Epova

jessenvollenweider architektur ag, Basel
Verfasser:innen: Anna Jessen, Ingemar Vollenweider
Mitarbeiter:innen: Lukas Eilers, Louisa Simon

PHR PLANUNG UND STADTENTWICKLUNG GmbH, Berlin
Verfasser:innen: Philipp Rentschler
Mitarbeiter:innen: S.Kubatta, M.Giovinazzo, A. Buchholz

Brandschutz: BBIG Berliner Brandschutz Ingenieurgesellschaft mbH, Berlin
Tragwerk: ahw Ingenieure GmbH, Berlin

  • Beurteilung durch die Jury

    Die Arbeit zeichnet sich durch die individuelle Ausprägung der drei Häuser aus, die jeweils architektonisch eigenständig bleiben und zugleich den Ensemblecharakter wahren. Entsprechend der jeweiligen Lage und Ausrichtung der einzelnen Gebäude entwickeln sich differenzierte Ansichten, die zugleich dem einheitlichen Prinzip der Dreigliedrigkeit von Sockel, Mittelteil und Dach folgen.

    Das Eckgebäude bildet einen markanten Auftakt und stellt zugleich überzeugende Bezüge zu den angrenzenden Gebäuden an der Gruner- und Jüdenstraße her. Eine Besonderheit bildet die Verschiebung der Gebäudeabschnitte entlang der Grunerstraße, wodurch beim Eckgebäude drei zusätzliche Fensterachsen und beim Wohnhaus an der Jüdenstraße ein Seitenflügel entstehen. Diese zusätzlichen Fensterachsen schaffen einen gelungenen Übergang zum benachbarten Wohn- und Geschäftshaus und bieten zugleich einen Mehrwert für die Bürogrundrisse in den Eckbereichen.

    Die Fassaden des Wohn- und Geschäftshauses sind sowohl vertikal als auch horizontal gegliedert und bilden die unterschiedlichen Nutzungen ab. Kontrovers bewertet wird jedoch der Abschluss und Übergang zum Eckgebäude sowie die stark differenzierte Fassadengliederung zur Grunerstraße, die insbesondere kein angemessenes Gegenüber zum Roten Rathaus bildet.

    Der zum Stadthof zurückgestaffelte Baukörper nimmt einerseits Bezug auf die Höhenentwicklung der gegenüberliegenden Bebauung und findet andererseits eine überzeugende Lösung für die Integration der Solarpaneele.

    Die Grundrisse der drei Gebäude sind hinsichtlich der Nutzungen und Erschließungen gut strukturiert. Für das Wohn- und Geschäftshaus ist der Treppenraum mit nur einem Aufzug jedoch zu gering dimensioniert.

    Die Wohneinheiten entsprechen teilweise nicht den Anforderungen der Auslobung, insbesondere die großen Wohnungen im Wohnhaus an der Jüdenstraße werden kritisch bewertet.

    Positiv hervorzuheben ist die Integration der archäologischen Funde, die über die Zugänge von der Grunerstraße sowie über den Durchgang von der Jüdenstraße erreichbar sind.

    Das Projekt liegt nicht im Rahmen des vorgegebenen Budgets und sollte insbesondere in der Fassadendetaillierung überarbeitet werden.
    Insgesamt stellt die Arbeit einen guten Beitrag zu einem städtischen Ensemble mit differenzierten, charaktervollen Einzelbauten dar.

    Denkmalschutz
    Die Lage der Aufzüge und Erschließung respektiert die archäologische Befundsituation im Untergeschoss und bietet zugleich hinreichende Zugänge. Die gestalterische Betonung des archäologischen Fensters in der Fassade wird begrüßt, auch wenn dort zunächst nicht die archäologischen Funde, sondern erst eine Vorfläche im Erdgeschoss von außen sichtbar ist.

  • Los 1 3. Preis von Ey Henkel Lageplan

    Lageplan

  • Los 1 3. Preis von Ey Henkel Modell

    Modell

  • Los 1 3. Preis von Ey Henkel GR UG

    Grundriss UG

  • Los 1 3. Preis von Ey Henkel GR EG

    Grundriss EG

  • Los 1 3. Preis von Ey Henkel GR OG

    Grundriss OG

  • Los 1 3. Preis von Ey Henkel Ansicht 1

    Ansicht der Grunerstraße

  • Los 1 3. Preis von Ey Henkel Ansicht 2

    Ansicht der Jüdenstraße

Kontakt

Senatsverwaltung für Stadtentwicklung, Bauen und Wohnen
Referat Architektur, Stadtgestaltung, Wettbewerbe