Los 2

1. Preis: 18.900 €

Duplex Architekten GmbH, Düsseldorf
Verfasser:innen: Christof Weber, Sarah Escher
Mitarbeiter:innen: Dan Schürch, Anne Kaestle, Alexander Zahn, Sissil Bollig

Gort Scott, London
Verfasser:innen: Jay Gort
Mitarbeiter:innen: Benjamin Carter

Kim Nalleweg Architekten GmbH, Berlin
Verfasser:innen: Kyung-Ae Kim-Nalleweg, Max Nalleweg
Mitarbeiter:innen: Anton Graßl, Annali Motte, Paul Stockhausen

Kosten: MO Architekten Moritz+Krause PartGmbB, Hamburg

  • Beurteilung durch die Jury

    Die Verfassenden schlagen drei Häuser vor, die sich angemessen deutlich voneinander unterscheiden. Alle Häuser nehmen sowohl in der Fassade als auch im Grundriss Motive der Berliner Gründerzeithäuser auf, ohne diese einfach zu kopieren. Vielmehr werden Aspekte der historischen Bauten so adaptiert, dass sie für das städtische Ensemble und heutige Nutzungen und Nutzer:innen gut funktionieren.

    Die Jury beurteilt die sehr fein und detailliert gestalteten Fassaden sowie die gute Adressbildung außerordentlich positiv. Ebenso wird die besondere Struktur der Grundrisse – vor allem in den beiden Vorderhäusern – überwiegend gelobt. Durch die Anordnung gleich großer, nutzungsoffener Räume um ein großzügiges, flexibel nutzbares Vestibül sind die Wohnungen für unterschiedlichste Bewohner:innen-Konstellationen gut nutzbar.

    Im Hinblick auf die förderfähigen Wohnungsgrößen entstehen ungewöhnlich großzügige Raumsituationen mit attraktiven Blickbeziehungen. In einzelnen Wohnungen wird die Anordnung der Schlaf-räume zur lärmbelasteten Straße hin kritisiert. Auch, dass das Gebäude etwas zu hoch ist, wird kritisch beurteilt.

    Die vorgeschlagene Holzkonstruktion wird im Zusammenhang mit der komplexen Grundrissstruktur im Hinblick auf die Kosten hinterfragt. Der Wohnungsmix mit einer zu hohen Anzahl großer Wohnungen wird als nicht ideal beurteilt. Die Anmutung und räumliche Struktur des Gartenhauses überzeugen, die teils nicht barrierefreie Erschließung der Wohnungen im EG wird kritisch beurteilt.

    Insgesamt beurteilt die Jury den Entwurf als eine sehr eigenständige und gelungene Interpretation historischer Berliner Häuser, mit der es gelingt, den drei Häusern einen eigenen, prägnanten Aus-druck zu verleihen und gleichzeitig ein sehr attraktives Wohnungsangebot auf überraschend kleinem Raum zu generieren.

    Wirtschaftlichkeit und Baukosten
    Der Beitrag zeichnet sich durch vergleichsweise hohe Kosten aus, die deutlich über dem Budget liegen. Kritisch zu hinterfragen sind aus ökonomischer Sicht insbesondere die Natursteingesimse sowie die Holz-Alu-Fenster inklusive der gerundeten Laibungen. Ferner sind die Holzkonstruktion, teilweise mit Lehmbauplatten, sowie die geringe Orthogonalität und die damit verbundene fehlende Standardisierung der Bauelemente kostentreibend.

  • Los 2 1. Preis Duplex Lageplan

    Lageplan

  • Los 2 1. Preis Duplex Modell

    Modell

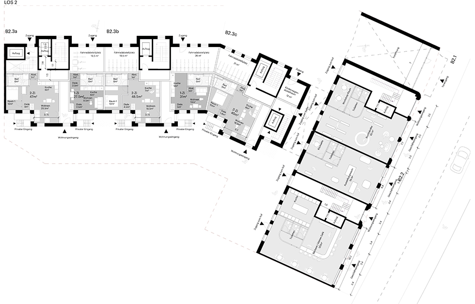
  • Los 2 1. Preis Duplex GR EG

    Grundriss EG

  • Los 2 1. Preis Duplex GR RG

    Grundriss Regelgeschoss

  • Los 2 1. Preis Duplex Ansicht

    Ansicht

1. Preis: 18.900 €

blrm Architekt*innen GmbH, Hamburg
Verfasser:innen: Jan Busemeyer, Rüdiger Ebel, Volker Halbach, Jannes Wurps
Mitarbeiter:innen: Jakob Schlipf, Lisann Mahnke, Garance Marechal

  • Beurteilung durch die Jury

    Der Entwurf zeichnet sich durch eine sehr deutliche Haltung aus und gibt sehr schlüssige, in der Jury allerdings kontrovers diskutierte Antworten auf die komplexe Entwurfsaufgabe.

    Ansichten und Fassaden der Gebäude B2.1 und B2.2 stehen in direkten Bezug zueinander. Allerdings scheinen die Gebäude in der Jüdenstraße nicht ausreichend eigenständig differenziert. Das Gartenhaus wird mit einem eigenen, klaren Gestaltungsansatz entwickelt und artikuliert mit einer einheitlichen Sprache, aber sorgfältig ausdifferenziert, die Fassaden zum Stadthof und zum Gartenhof.

    Die Grundrisse der Gebäude B2.1 und B2.2 sind nahezu ausschließlich einseitig orientiert. Dieser Umstand wird kritisch diskutiert. Allerdings bieten die Verfassenden mit der vorgeschlagenen Anordnung der Treppenhäuser und dem mittig gelegenen Flur eine stimmige Grundlage für den weiteren Planungsprozess.

    Das Gebäude B2.3 wird ausschließlich vom Stadthof aus erschlossen. So stärkt der Entwurf als einziger Wettbewerbsbeitrag die unterschiedlichen Qualitäten des halböffentlichen Stadthofs und des privateren Gartenhofs, der auf diese Weise geschützt bleibt.

    Der Entwurf hat die meisten Wohnungen und einen attraktiven Wohnungsmix.

    Die unterschiedlichen Konstruktionen, Stahlbeton, monolithisches Mauerwerk und Lehm-Mauerwerk, können zu einem einfachen, nachhaltigen Gesamtkonzept entwickelt werden. Die zulässige Gebäudehöhe wird durch die Dachkonstruktion mit den Maisonettewohnungen überschritten. Die Loggien der Gebäude B2.1 und B2.2 werden aus Schallschutzgründen voraussichtlich verglast ausgeführt werden müssen.

    Mit seiner Gesamtqualität wird sich dieser Entwurf als eigenständiger Baustein gut in das Gesamtquartier einfügen.

    Wirtschaftlichkeit und Baukosten
    Der Beitrag liegt im Wettbewerbsvergleich hinsichtlich der Kosten im Durchschnitt, liegt aber dennoch deutlich über dem vorgegebenen Budget.

    Im weiteren Verlauf sollten aus Gründen der Baukosten bzw. Wirtschaftlichkeit Themen wie Lehnmauerwerk und Aluminiumfenster überdacht werden. Die Erdgeschossfassade der Gebäude B2.1 und B2.2 zur Jüdenstraße sollte hinsichtlich der Kosten, u.a. aufgrund des hohen Glasanteils, geprüft werden.

    In der Materialität der Fassaden und der Geradlinigkeit der Grundrisse deutet sich an, dass eine Reduzierung der Baukosten ohne Qualitätsverluste erreicht werden kann.

  • Los 2 1. Preis blrm Lageplan

    Lageplan

  • Los 2 1. Preis blrm Modell

    Modell

  • Los 2 1. Preis blrm GR EG

    Grundriss EG

  • Los 2 1. Preis blrm GR RG

    Grundriss Regelgeschoss

  • Los 2 1. Preis blrm Ansicht

    Ansicht

3. Preis: 9.500 €

OS arkitekter, Kopenhagen
Verfasser:innen: Stine Christensen
Mitarbeiter:innen: Olmo Ahlmann

ADEPT, Kopenhagen
Verfasser:innen: Martin Krogh
Mitarbeiter:innen: Christine Dalgaard Morild

C.F. Møller Deutschland GmbH, Berlin
Verfasser:innen: Thomas Margaretha
Mitarbeiter:innen: Mads Mandrup Hansen

  • Beurteilung durch die Jury

    Die Arbeit 6010 formuliert eine für den Ort angemessene großstädtische Haltung, welche sowohl der Bedeutung im historischen Zentrum Berlins als auch der Funktion als Wohn- und Geschäfts-quartier gerecht wird.

    Zur Jüdenstraße hin werden zwei Fassaden als Tripartito von Sockel, Mittelbau und Dach gebildet, welche sich in subtilen Details voneinander unterscheiden und damit der übergreifenden Idee von individuell formulierten Gebäuden gerecht werden, gleichwohl aber auch miteinander harmonieren.

    Die Formensprache ist klassisch, jedoch rational und zurückhaltend. Die Vielzahl und das vergleichsweise kleine Format der Fenster wird kontrovers diskutiert; nach außen lässt sie das Gebäude größer erscheinen als es ist. Das Prinzip der gleichmäßigen Reihung sowie die Proportionierung werden gewürdigt. Im Innenraum lassen die Vielzahl und Gleichartigkeit der Öffnungen eine große Flexibilität in der Aufteilung der Räume zu.

    Das Gartengebäude ist in seiner Architektursprache reduzierter, weist jedoch Vor- und Rücksprünge und zum Gartenhof hin zusätzlich Balkone. Es wirkt nüchtern und gelassen, aber nicht monoton.

    Die Gebäudegrundrisse sind klar und seriell strukturiert. Für alle Gebäude wurde eine Spännertypologie gewählt, die Erschließungskerne sind untereinander gleich beziehungsweise ähnlich, die Grundrisse der Gebäude an der Jüdenstraße sind gespiegelt. Damit besteht ein hohes Potenzial für eine rationelle und wirtschaftliche Ausführung. Das baukonstruktive Prinzip eines massiven Betonsockels mit darüberliegender Holzhybridkonstruktion bietet die Möglichkeit einer Vorfertigung und von insgesamt geringen CO2-Emissionen.

    Kontrovers diskutiert wird, ob die vergleichsweise konventionellen Grundrisse dem durch die Fassaden zur Jüdenstraße hin vermittelten großzügigen Eindruck entsprechen können. Gleichwohl wird der Entwurf als möglicher Weg gesehen, dem immanenten Widerspruch von großstädtischer Architektur und sozialem Wohnungsbau gerecht zu werden.

    Wirtschaftlichkeit und Baukosten
    Der Kosten des Beitrags liegen oberhalb des Durchschnitts der Wettbewerbsarbeiten und über dem vorgegebenen Budget. Die Flächeneffizienz sollte optimiert werden. Kostentreibend wirken sich die kleinteiligen Fensterstrukturen in hoher Stückzahl aus. Ferner werden die Holz-Hybrid-Bauweise sowie die Geometrie der Balkone (abgerundete Ecken) kritisch gesehen.

  • Los 2 3. Preis Lageplan

    Lageplan

  • Los 2 3. Preis Modell

    Modell

  • Los 2 3. Preis GR EG

    Grundriss EG

  • Los 2 3. Preis GR RG

    Grundriss Regelgeschoss

  • Los 2 3. Preis Ansicht

    Ansicht

Kontakt

Senatsverwaltung für Stadtentwicklung, Bauen und Wohnen
Referat Architektur, Stadtgestaltung, Wettbewerbe