Berliner Schloss: Bilder & Entwürfe
In der Mitte Berlins wurde das Berliner Schloss wieder aufgebaut. Als Humboldtforum zeigt es Bestände aus mehreren Berliner Museen. Die Fotostrecke zeigt Entwürfe und Simulationen aus der Planungsphase. Das Schloss wurde Ende 2020 eröffnet.
© Stiftung Berliner Schloss – Humboldtforum / Franco Stella
Ansicht von der Nord-West-Seite
© Stiftung Berliner Schloss – Humboldtforum / Franco Stella
Belvedere
© Stiftung Berliner Schloss – Humboldtforum / Franco Stella
So soll der Schlüterhof aussehen.
© Stiftung Berliner Schloss – Humboldtforum / Franco Stella
Passage
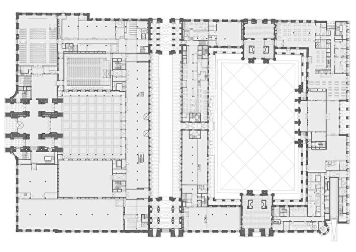
© Stiftung Berliner Schloss – Humboldtforum / Franco Stella
Grundriss Erdgeschoss
© Stiftung Berliner Schloss – Humboldtforum / Franco Stella
Blick in das Foyer
© Stiftung Berliner Schloss – Humboldtforum / Franco Stella
Foyer von der Treppenhalle
© Stiftung Berliner Schloss – Humboldtforum / Franco Stella
Treppenhalle
© Holzer Kobler Architekturen Zürich
Humboldtforum Wettbewerb, Bauliches Corporate Design
Eingangshalle 2
© Holzer Kobler Architekturen Zürich
Humboldtforum Wettbewerb
Bauliches Corporate Design
Holzer Kobler Architekturen Zürich
Eingangshalle 1
© Holzer Kobler Architekturen Zürich
Garderobe Ι Entwurf, Stand 14.03.2014
© Holzer Kobler Architekturen Zürich
Café Ι Entwurf, Stand 14.03.2014
© Stiftung Berliner Schloss – Humboldtforum / Franco Stella
Schnitt Ansicht Eingang Foyer
© Stiftung Berliner Schloss – Humboldtforum / Franco Stella
Ansicht vom Lustgarten
© Stiftung Berliner Schloss – Humboldtforum / Franco Stella
Ansicht vom Schlossplatz
© Stiftung Berliner Schloss – Humboldtforum / Franco Stella
Längsschnitt
© Stiftung Berliner Schloss – Humboldtforum / Franco Stella
Ansicht von der Schlossfreiheit
© Stiftung Berliner Schloss – Humboldtforum / Franco Stella
Dachaufsicht
Weitere aktuelle Fotostrecken
Einheitsdenkmal "Bürger in Bewegung"
© Milla & Partner
Deutsches Historisches Museum
© dpa
Funkturm auf dem Messegelände
© dpa
Loriots Grab auf dem Friedhof Heerstraße
© dpa